Modellfoto
Modellfoto
Modellfoto
Modellfoto
Modellfoto
Modellfoto
Modellfoto
Modellfoto
Außenperspektive
Außenperspektive
Innenperspektive
Innenperspektive
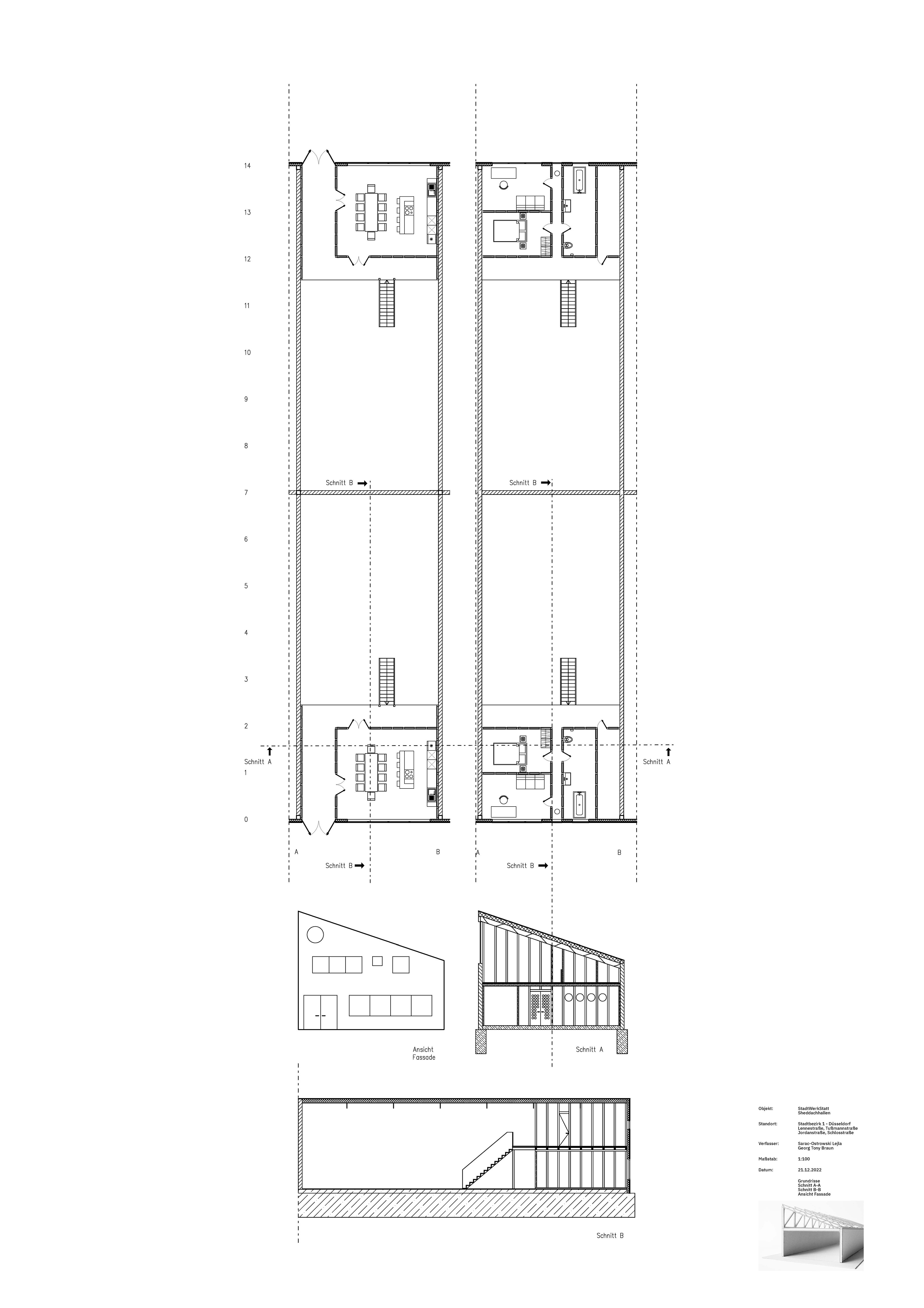
Grundriss, Ansicht, Schnitte
Grundriss, Ansicht, Schnitte
Isometrie
Isometrie
Back to Top